Ville Il Noce

Camposampiero (PD)

L'armonia del legno, l'esclusività del design.

L'essenza dell'abitare contemporaneo

Spazi di luce, pensati per la vita di ogni giorno

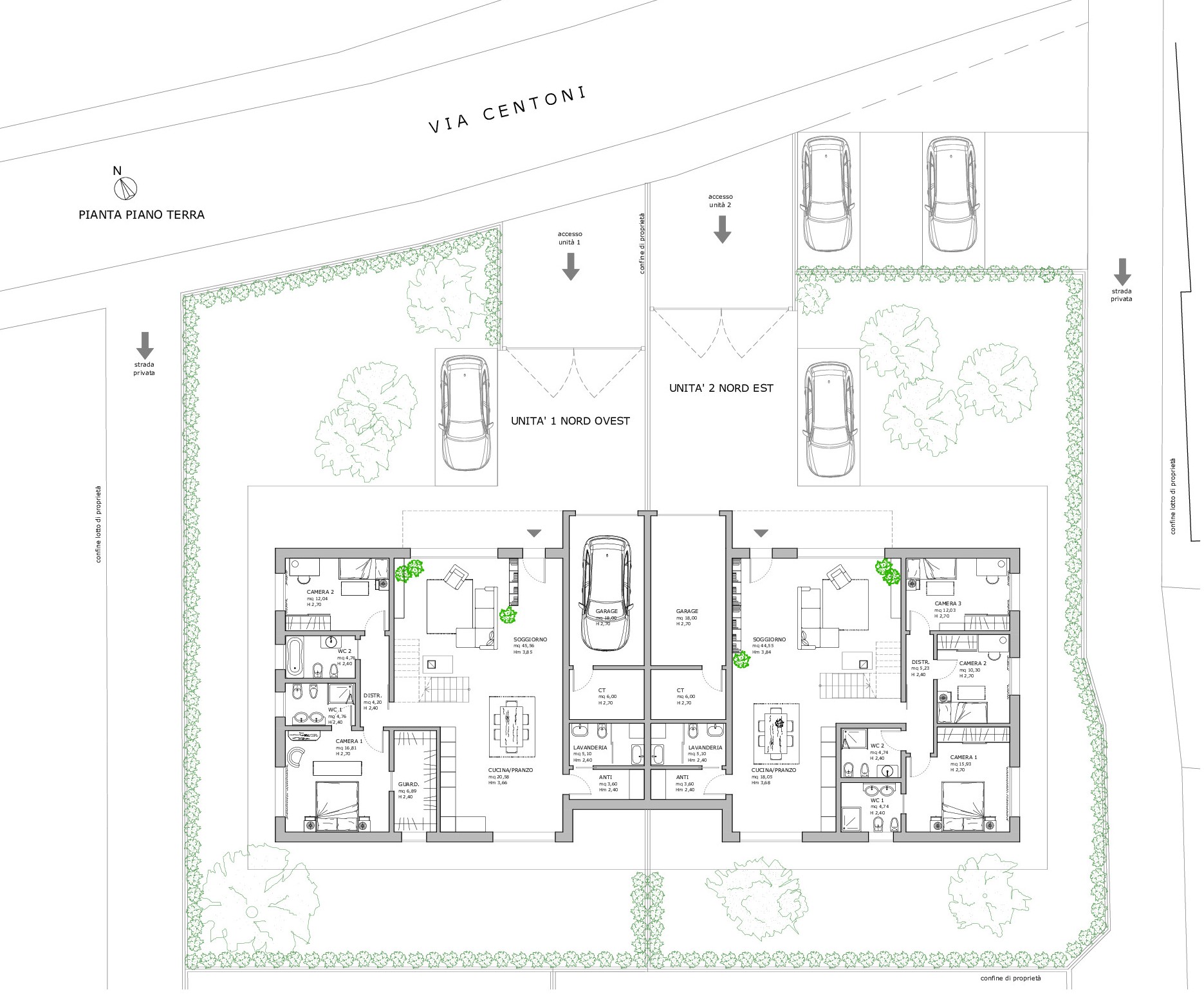
Progettate per chi cerca un equilibrio perfetto tra estetica e funzionalità, le Ville Il Noce offrono ambienti inondati di luce naturale. Il cuore della casa è l'ampia zona giorno in concept open space: un volume fluido e conviviale dove soggiorno, sala da pranzo e cucina si fondono, creando lo scenario perfetto per l'accoglienza e la vita familiare.

Un elemento architettonico distintivo, la scala di design, conduce al piano superiore. Qui, un ampio soppalco si apre verso una terrazza panoramica: un rifugio privato dedicato al relax e alla contemplazione.

Zona notte: un santuario di privacy e comfort

Ogni dettaglio è pensato per il benessere. La camera master è una vera suite privata con bagno en suite, progettata per offrire un'atmosfera intima e rilassante. Le ulteriori camere, personalizzabili nella configurazione, si prestano a diventare camere per gli ospiti, stanze per i figli o studio professionale. Completa la zona notte una lavanderia funzionale, perfettamente integrata nel layout per una gestione impeccabile della casa.

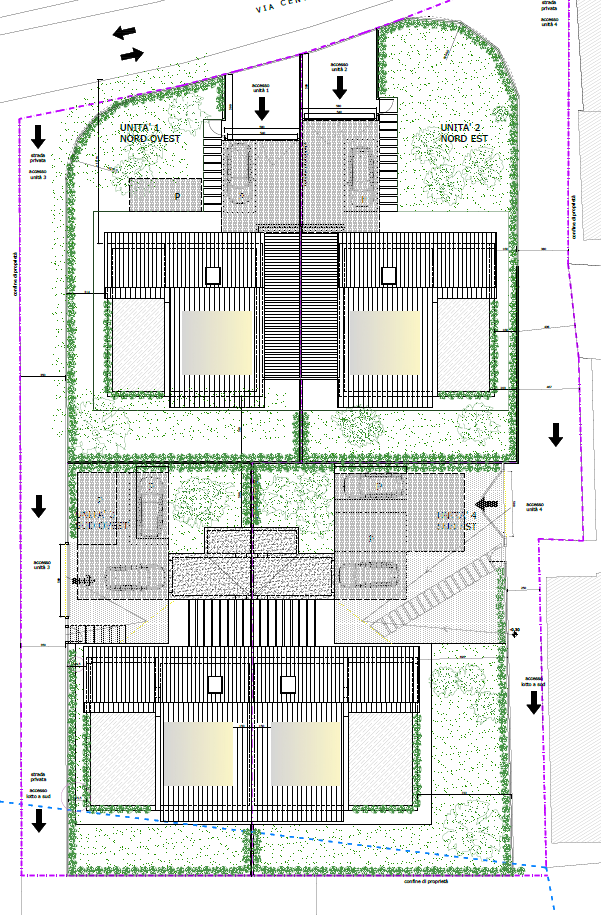
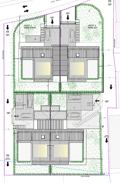
Il dialogo tra architettura e natura

Le ville sono circondate da generose aree verdi private e ampi spazi pavimentati, estensione naturale degli interni. Un contesto esclusivo per chi desidera vivere immerso nella quiete, senza rinunciare ai vantaggi della tecnologia costruttiva d'avanguardia firmata Fabrilegno.

Scheda Tecnica

Eccellenza certificata

Caratteristica Bifamiliare Nord (Unità 1-2) Bifamiliare Sud (Unità 3-4)
Superficie totale 170 mq 180 mq
Terrazzo living 51 mq 62 mq
Efficienza energetica Classe A4 Classe A4
Tecnologia Riscaldamento a pavimento Riscaldamento a pavimento
Sostenibilità Pannelli fotovoltaici dedicati Pannelli fotovoltaici dedicati
Layout 4 locali • 2 o 3 camere 4 locali • 2 o 3 camere
Parcheggio Garage + 2 posti auto Garage + 2 posti auto
Giardino Ampio giardino privato Ampio giardino privato
Approfondimento spazi

Dati indicativi: la configurazione finale può variare in funzione della personalizzazione e delle scelte di capitolato.

Location

Tra storia e natura

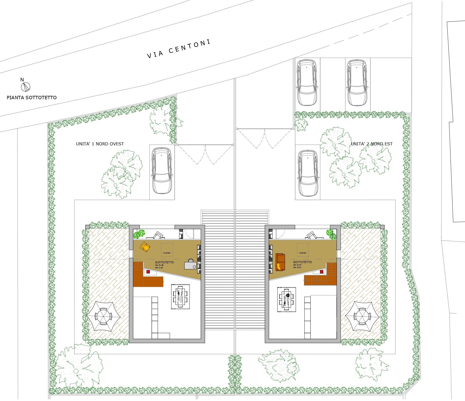
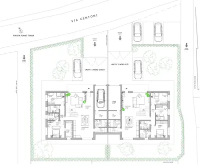
Situato all'inizio di via Centoni a Camposampiero (PD), il complesso sorge in una posizione strategica. La tranquillità di un'area verde incontra la comodità di un borgo storico vivace e prestigioso, dotato di ogni servizio: scuole d'eccellenza, poli sanitari e collegamenti rapidi.

Immagina la tua casa
Contatti

Parliamo del tuo progetto

Scrivici quello che ti piacerebbe realizzare o per ricevere un contatto e chiederci maggiori informazioni.

Apri su Google Maps
Dove siamo
Apri su Google Maps
Attila
Attila
Il nostro “responsabile accoglienza”.